Neues Ruhiges leben! !!!! – Rabattverkauf mit 1.000.000 HUF! Einfamilienhaus zum Verkauf
- 42.000 Euro €
 - Veröffentlichungsdatum: 21/02/2024
 - 
          
- Sárbogárd, Sárbogárd, Fejér, Ungarn
 
 
Neues Ruhiges leben! !!!! – Rabattverkauf mit 1.000.000 HUF! Einfamilienhaus zum Verkauf in Sárbogárd!!!
Für Einsteiger auf dem Land!! Retro-Einfamilienhaus zum Verkauf in Sárbogárd!!!
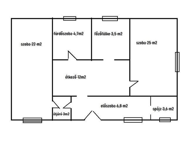
Zum Verkauf steht in Sárbogárd ein  81 m2 großes Zweizimmer-Backsteinhaus auf einem 1268 m2 großen Grundstück.
RABATT -1.000.000 Ft !!! NEU Verkaufspreis 16.500.000 HUF Ungefer 42.000 Euro
 Beim Betreten des Hauses empfängt uns das 6,8 m² große Vorzimmer, von hier aus öffnet sich rechts die 3,6 m² große Speisekammer, links der 3 m² große Flur und das 12 m² große Esszimmer. Das 22 m² große Zimmer öffnet sich vom Foyer aus. Das 5 m2 große Badezimmer, die 4 m2 große Küchenzeile und das 25 m2 große Zimmer öffnen sich vom Esszimmer aus.
In der Fortsetzung des Hauses befinden sich das Heizhaus und die Garage.
Von innen strahlt das Haus eine praktische, familienfreundliche Atmosphäre aus.
Als ob die Zeit stehen geblieben wäre, erinnert es an die friedlichen, ruhigen Tage unserer Großeltern!
Das Haus wartet auf einen neuen Besitzer!
In diesem Haus können wir die bedrückende Welt der Großstädte hinter uns lassen und im Gleichgewicht leben!!!
Die Nachbarn sind nette, gute Leute! Die Gegend ist besonders für diejenigen zu empfehlen, die ein sicheres und friedliches Leben auf dem Land suchen.
Das Handels- und Gastgewerbe der Siedlung ist sehr gut, von der Konditorei bis zum Restaurant, von der Großhandelskette ( Tesco, Penny Market, Lidl,Rossman,) bis zum Haushaltsbetrieb, vom Autohaus bis zur Tankstelle ist alles zu finden. Mehrere Bildungs- und Bildungseinrichtungen sind in den Bereichen Stadterhaltung, Kindergärten, Grundschulen, Gymnasien, Familienhilfe und Kinderfürsorge tätig, Krankenhaus in Székesfehérvár (38 km) un in Dunaujváros (29 km). 
 Székesfehérvár 38 km, Dunaújváros 29 km, Budapest 97 km und Balaton 40 km. Der öffentliche Nahverkehr wird durch ausreichende Bahn- und Buslinien gewährleistet, um den Bedürfnissen der Bevölkerung gerecht zu werden.
Lassen Sie sich dieses günstige Rabattangebot nicht entgehen, denn Sie verpassen eine sehr gute Gelegenheit!!
 Jetzt 16.500.000 HUF
Kontakt: +36 20 552 85 81, +36 30 266 52 34
Ähnliche Angebote
- 
    
Familienhaus
Haus Tekenye 10/04/2025 145.000 Euro €Einfamilienhäuser zu verkaufen in Ungarn Tekenye Aufgrund der bevorstehenden Geburt eines Kindes möchten wir eine Größe größer kaufen. Suchen Sie mit Zuversicht horvath.evelin961212@gmail.com ruhige Gegend ordentliches Haus und Hof sofort zum Ausgebe...
 - 
    
Bauunternehmen mit erfahrenen Fachkräften für Subunternehmerarbeiten – Schnell und zuverlässig!
Haus Homokbödöge 02/04/2025 Preis erfragenUnser Bauunternehmen mit Sitz in Ungarn verfügt über langjährige Auslandserfahrung und zuverlässige, gut ausgebildete Fachkräfte und übernimmt Subunternehmerarbeiten. Wir sind hauptsächlich in den Bereichen Tief- und Hochbau sowie Metallbau tätig, si...
 - 
    
Familienhaus zu verkaufen Hungary!!!
Haus Győr (Győr-Moson-Sopron) 31/03/2025 150.000 Euro €Familienhaus zu verkaufen! In einer ruhigen Sackgasse in Hungary Győr -9012- Ménfőcsanak steht ein Familienhaus mit Panoramagrundstück zum Verkauf. Das Haus wurde 1991 erbaut, hat eine Wohnfläche von 110 m² und befindet sich auf einem 1237 m² großen ...
 

 
